Skip to main content

Pontweg 197

  • 1796 MB De Koog
Gewijzigd Verkocht onder voorbehoud
965000
k.k.
5.290 m²

Perceeloppervlakte

159 m²

Woonoppervlakte

B

Energielabel

4

Slaapkamers

1994

Bouwjaar

965000

price
k.k.

5.290 m²

Perceeloppervlakte

159 m²

Woonoppervlakte

B

Energielabel

4

Slaapkamers

1994

Bouwjaar

    Omschrijving

    Altijd al buitenaf willen wonen? Dan is dit uw kans!

    Deze prachtige vrijstaande woning ligt verscholen achterop het perceel, omringd door groen, volwassen bomen en uitgestrekte weilanden. Hier begint het buitenleven, midden in de natuur, met alle rust, ruimte en privacy die u zich maar kunt wensen. Een unieke plek waar uw woondroom werkelijkheid kan worden. Het totaal is gelegen op maar liefst 5.290 m² eigen grond.

    Eenmaal aangekomen bij de woning heeft u alle ruimte om uw auto’s te parkeren. De bestrating is sierlijk aangelegd wat een warm welkom geeft. 

    Zodra u de sfeervolle en zonnige woonkamer binnenstapt, valt direct de knusse zithoek op. Op de begane grond zijn meerdere zitgedeeltes aanwezig. Via de openslaande deuren met shutters in de woonkamer komt u in de riante tuin/wei. Het uitzicht alleen al is adembenemend!

    Via de charmante toog loopt u door naar de landelijke woonkeuken met eethoek, waar gezelligheid en huiselijkheid samenkomen. De originele keuken heeft een fraai granito aanrechtblad en biedt diverse inbouwapparatuur zoals een vaatwasmachine, oven, koelkast, gaskookplaat, afzuigkap en beschikt over voldoende opbergruimte.

    Twee treden lager bevindt zich nog een tweede zithoek (zitkuil) met haard en een lichte erker. Hier valt het daglicht prachtig naar binnen en ontstaat een fijne plek om in alle seizoenen te genieten van het uitzicht op de beschutte achtertuin. Tevens vindt u hier een van de vier airco-units en de aansluiting voor de tv. 

    In de riante hal vindt u het toilet, de meterkast en trapopgang naar de verdieping.

    Loopt u mee naar boven?
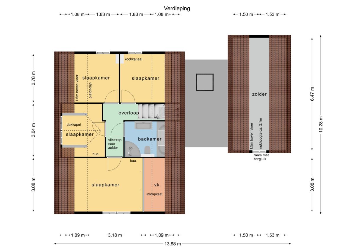
    Op de verdieping zijn 4 comfortabele slaapkamers (3 wat compacter maar groot genoeg) en een badkamer. Een ervan wordt momenteel gebruikt als kantoor, heeft airco en kijkt prachtig uit over de wei aan de zuidkant. De grootste slaapkamer aan de voorzijde beschikt over een eigen inloopkast en airco.

    De vlizotrap op de overloop brengt u naar de bergzolder waar u gemakkelijk kunt staan. Ideaal voor het opbergen van uw spullen. 

    De badkamer is praktisch ingericht met een douche, een keurig wastafelmeubel, ligbad en toilet. 

    Via de hal komt u in de bijkeuken. Hier zijn de aansluitingen voor de wasmachine, droger, cv-ketel en kalkfilter. De bijkeuken geeft toegang tot de achtertuin én de ruime garage. Boven de garage is een royale bergzolder, voorzien van geïsoleerde kap. Ook hier kunt rechtop staan, wat zorgt voor extra gebruiksgemak.

    En dan de tuin… WAUW! Wat een geweldige ruimte! Rondom de woning vindt u een fantastische fraaie tuin en een afgesloten wei van meer dan 1.200 m². 

    In de achtertuin staat een fraai houten bijgebouw uit 2023, bestaande uit een stal/berging, overkapping met loungehoek en een klusschuur. De stal/berging geeft toegang tot de wei welke geheel omsloten is. 

    Rust, ruimte & veel groen! 

    Op het perceel treft u diverse leuke zitjes, terrassen en plekjes waar u fijn kunt vertoeven.

    Een moestuin, het houden van dieren… alles is hier mogelijk. De riante wei biedt een prachtig uitzicht, stelt u zich eens voor hoe mooi het is bij zonsopgang of zonsondergang! 
    Bovendien liggen er in de wei 16 zonnepanelen, wat bijdraagt aan een duurzame en energiezuinige woonomgeving.


    Deze woning ligt heerlijk vrij en verscholen tussen de bomen in de nabijheid van De Koog.

    Hebben wij uw interesse gewekt? 

    Neem dan contact op met ons kantoor voor het maken van een bezichtigingsafspraak.

    Algemeen

    Type woning
    Vrijstaand woonhuis met garage
    Hoofdcategorie
    Permanente woning
    Slaapkamers
    4
    Badkamers
    1
    Onderhoud binnen
    Goed
    Onderhoud buiten
    Goed
    Aanvaarding
    In overleg
    Soort dak
    Zadeldak - pannen gedekt
    Comfort
    Normaal
    Bouwjaar
    1994
    Publicatie datum
    30 October 2025

    Energie

    Energielabel
    B
    Verwarming
    HR-CV ketel, Open haard, Vloerverwarming gedeeltelijk
    Type brandstof CV ketel
    Gas
    HR-CV ketel merk en bouwjaar
    Nefit Trendline HRC25 CW | 2015
    Isolatie
    Grotendeels geïsoleerd
    Type warmwater voorziening
    HR CV ketel

    Oppervlakten & Inhoud

    Perceeloppervlakte
    5.290 m²
    Gebruiksoppervlakte woning
    159 m²
    Inhoud woning
    556 m³

    Kadastrale gegevens

    Gemeente
    Texel
    Sectie
    T
    Nummer(s)
    2346
    Eigendomsgegevens
    Volle eigendom

    Buiten & Tuin

    Soort tuin
    Tuin rondom
    Kwaliteit tuin
    Verzorgd en zeer royaal.
    Parkeergelegenheid
    Op eigen terrein
    Aanvullende eigenschappen

    De tuin is een oase van rust met diverse beplantingen, een wei en een zee van ruimte. 

    Indeling verdieping

    1e verdieping
    Overloop, Badkamer
    Overig 1e verdieping
    Op de verdieping bevinden zich 4 prettige slaapkamers.
    2e verdieping/zolder
    Bergruimte

    Bergruimte

    Soort bergruimte
    Aangebouwd, Vrijstaand
    Inhoud
    102 m³
    Voorzien van elektra/water
    Elektra
    Gebruiksoppervlakte
    ca. 24 m²
    Geïsoleerd
    Met geïsoleerde kap
    Aanvullende eigenschappen

    Berging/stal/klusschuur ca. 24 m² | overkapping met loungeplek ca. 12 m² 

    Extra's

    Overige bijzonderheden
    Rookkanaal, Buitenzonwering, Zonnepanelen, Natuurlijke ventilatie, Openslaande deuren

    Pontweg 197

    Brochure_Pontweg_197-gecomprimeerd_1.pdf
    Pontweg 197
    1796 MB De KoogTexel