Skip to main content

Roggeslootweg 259

  • 1795 JX De Cocksdorp
398000
kosten koper
246 m²

Perceeloppervlakte

72 m²

Woonoppervlakte

C

Energielabel

3

Slaapkamers

1988

Bouwjaar

398000

kosten koper

246 m²

Perceeloppervlakte

72 m²

Woonoppervlakte

C

Energielabel

3

Slaapkamers

1988

Bouwjaar

    Omschrijving

    Sfeervolle recreatiewoning gelegen op het geliefde vakantiepark De Krim en bevindt zich op een perceel eigen grond van 246 m². Deze recreatiewoning biedt de perfecte uitvalbasis om het prachtige eiland Texel te ontdekken. 

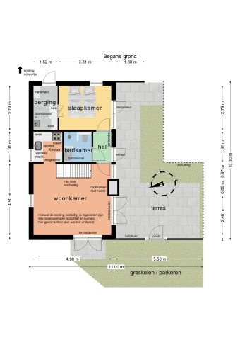
    Indeling: Hal/entree, toegang tot de woonkamer en keuken, slaapkamer en badkamer.

    De woonkamer is heerlijk licht dankzij de openslaande deuren aan weerszijden, die de woonkamer verbindt met de omliggende tuin. De gezellige openhaard zorgt voor een knusse sfeer op de koudere dagen.

    Met de comfortabele zit– en eethoek is er plek genoeg om samen te ontspannen en te genieten. De begane grond is voorzien van een nette PVC-vloer, die niet alleen modern oogt maar ook onderhoudsvriendelijk is. 

    De stijlvolle keuken is uitgerust met alle benodigde apparatuur en heeft een nette afwerking. 
    Op de begane grond is een ruime slaapkamer met openslaande deuren naar het terras en een moderne badkamer welke is voorzien van een inloopdouche, wastafelmeubel en toilet.
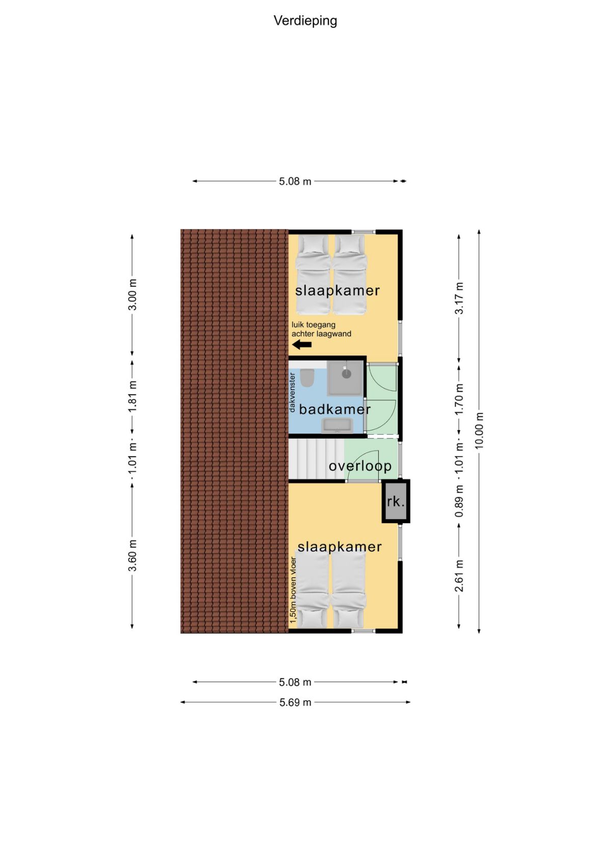
    Via de trapopgang komt u op de verdieping. Hier bevinden zich twee prettige slaapkamers en een royale nette 2e badkamer met douche, wastafelmeubel, toilet en een groot Veluxdakraam.
    De woning beschikt over een inpandige berging waar zich de opstelplaats bevindt voor de HR CV-ketel. 

    Naast de woning treft u een beschut terras aan waar u fijn privé kunt vertoeven en achter de woning is een heerlijke groene tuin met een vrijstaand houten tuinhuisje.

    Beleef het ultieme vakantiegevoel op vakantiepark De Krim!

    Algemeen

    Type woning
    Vrijstaande recreatiewoning
    Hoofdcategorie
    Recreatiewoning
    Slaapkamers
    3
    Badkamers
    2
    Onderhoud binnen
    Goed
    Onderhoud buiten
    Goed
    Aanvaarding
    In overleg
    Soort dak
    Lessenaars dak, pannen gedekt
    Type inrichting
    Gemeubileerd
    Comfort
    Normaal
    Bouwjaar
    1988
    Publicatie datum
    14 November 2025

    Energie

    Energielabel
    C. Geldig tot 30-01-2034
    Verwarming
    HR-CV ketel, Open haard
    Type brandstof CV ketel
    Gas
    HR-CV ketel merk en bouwjaar
    Intergas Xtreme 30 2024
    Isolatie
    Grotendeels geïsoleerd
    Type warmwater voorziening
    HR CV ketel

    Oppervlakten & Inhoud

    Perceeloppervlakte
    246 m²
    Gebruiksoppervlakte woning
    72 m²
    Inhoud woning
    253 m³

    Kadastrale gegevens

    Gemeente
    Texel
    Sectie
    A
    Nummer(s)
    4706
    Eigendomsgegevens
    Volle eigendom

    Buiten & Tuin

    Soort tuin
    Tuin rondom
    Kwaliteit tuin
    Goed
    Parkeergelegenheid
    Op eigen terrein
    Aanvullende eigenschappen

    Beschutte tuin met terras, gazon en tuinhuisje

    Indeling verdieping

    1e verdieping
    Overloop, Badkamer
    Overig 1e verdieping
    2 slaapkamers

    Extra's

    Overige bijzonderheden
    Rookkanaal, Openslaande deuren

    Roggeslootweg 259

    brochure_Roggeslootweg_259_gecomprimeerd.pdf
    Roggeslootweg 259
    1795 JX De CocksdorpTexel