Skip to main content

Wintergroen 29

  • 1796 BL De Koog
Gewijzigd
425000
k.k.
149 m²

Perceeloppervlakte

142 m²

Woonoppervlakte

D

Energielabel

6

Slaapkamers

1973

Bouwjaar

425000

price
k.k.

149 m²

Perceeloppervlakte

142 m²

Woonoppervlakte

D

Energielabel

6

Slaapkamers

1973

Bouwjaar

    Omschrijving

    In een rustige woonstraat in het geliefde De Koog, vindt u deze ruime tussenwoning gelegen op een perceel van 149 m² eigen grond. De woning beschikt totaal over 6 slaapkamers, 3 badkamers én een verrassend extra woongedeelte aan de achterzijde van het huis. Ideaal als gastenverblijf, atelier, kantoor of relaxplek. Door de langgerekte achtertuin op het oosten en de voortuin op het westen is er de hele dag wel een fijne plek aanwezig om van de zon te genieten.

    Indeling | U komt binnen in de hal waarna toegang tot de sfeervolle woonkamer. De woonkamer aan de voorzijde is heerlijk licht. Hier kunt u een gezellige zithoek creëren waar u in alle rust geniet van het uitzicht op de voortuin en de rustige straat. De mooie houten vloerdelen geven de woonkamer een warme uitstraling.  Dankzij de schuifpui aan de achter zijde heeft u direct toegang tot de achtertuin.

    De keuken is eenvoudig van opzet maar compleet en netjes onderhouden en tevens voorzien van enkele praktische apparatuur. Aansluitend aan de keuken bevindt zich een bijkeuken met een deur naar de achtertuin. Via de bijkeuken is er toegang tot het achterste woongedeelte.

    De hal beschikt over een garderobe, toilet, trapkast met meterkast, en de trapopgang naar de verdieping. 

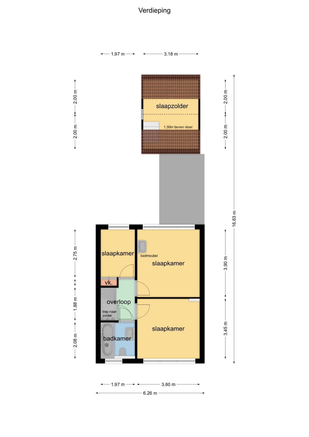
    1e verdieping | Op de eerste verdieping bevinden zich drie prima slaap kamers en een badkamer. Twee slaapkamers, waarvan één met wastafel, zijn royaal van opzet en één slaapkamer op de 1e verdieping is iets kleiner van formaat.

    De badkamer is voorzien van een ligbad met douche, toilet en wastafelmeubel. 

    2e verdieping | Via een vaste trap bereikt u de tweede verdieping. Hier vindt u nog twee slaapkamers en tweede badkamer en een ruime bergruimte. Eén van de slaapkamers beschikt over een dakkapel, wat zorgt voor extra licht en ruimte.

    De badkamer op deze verdieping is uitgerust met een douche, toilet en wastafel. Praktisch voor een groot gezin of logés. 

    Gastenverblijf | Achterin de woning bevindt zich een apart verblijf, bereikbaar via de woning én via een eigen entree aan de achterzijde van het huis. Deze ruimte biedt eindeloze mogelijkheden: gebruik het als gastenverblijf, kantoor, hobbyruimte of zelfs wellicht als zelfstandig woongedeelte voor oudere kinderen, een ouder of grootouder. 

    De begane grond van dit gedeelte bestaat uit een knusse woonkamer, kleine pantry en een douche met toilet.

    De verwarming van het gasten verblijf is zelfstandig te regelen met een aparte thermostaat. 

    Op de verdieping bevindt zich een slaapzolder, een heerlijk privéplekje!

    Tuin | De zonnige achtertuin met achterom is grotendeels bestraat en biedt diverse plekjes om heerlijk privé te vertoeven.

    Verder treft u een houten tuinhuisje aan, perfect voor het opbergen van (tuin) gereedschap of een fiets. 

    Wintergroen 29 is een huis met meer ruimte dan u op het eerste gezicht zou vermoeden. Gelegen op loopafstand van de voorzieningen van De Koog, het strand en de duinen.

    Nieuwsgierig geworden? Neem contact met ons op voor een bezichtiging.

    Algemeen

    Type woning
    Tussen/middenwoning
    Hoofdcategorie
    Permanente woning
    Slaapkamers
    6
    Badkamers
    3
    Onderhoud binnen
    Goed
    Onderhoud buiten
    Goed
    Aanvaarding
    In overleg
    Soort dak
    Zadeldak met dakkapel aan achterzijde - pannen gedekt
    Type inrichting
    Leeg
    Comfort
    Normaal
    Bouwjaar
    1973
    Publicatie datum
    30 October 2025

    Energie

    Energielabel
    D (geldig tot 08-10-2035)
    Verwarming
    HR-CV ketel, Vloerverwarming gedeeltelijk
    Type brandstof CV ketel
    Gas
    HR-CV ketel merk en bouwjaar
    Intergas | 2013
    Type warmwater voorziening
    HR CV ketel

    Oppervlakten & Inhoud

    Perceeloppervlakte
    149 m²
    Gebruiksoppervlakte woning
    142 m²
    Inhoud woning
    473 m²

    Kadastrale gegevens

    Gemeente
    Texel
    Sectie
    T
    Nummer(s)
    1287
    Eigendomsgegevens
    Volle eigendom

    Buiten & Tuin

    Soort tuin
    Voortuin, Achtertuin
    Gesitueerd op
    Achtertuin - oosten | voortuin - westen
    Kwaliteit tuin
    Goed
    Parkeergelegenheid
    Openbaar parkeren

    Indeling verdieping

    Overig 1e verdieping
    Overloop waarna toegang tot 3 slaapkamers en een badkamer.
    Overig 2e verdieping/zolder
    Overloop waarna toegang tot 2 slaapkamers en een badkamer.

    Bergruimte

    Soort bergruimte
    Vrijstaand, Hout

    Extra's

    Overige bijzonderheden
    Mechanische afzuiging, Natuurlijke ventilatie, Openslaande deuren

    Wintergroen 29

    Brochure_Wintergroen_29_gecomprimeerd.pdf
    Wintergroen 29
    1796 BL De KoogTexel