Skip to main content

Roggeslootweg 315

  • 1795 JX De Cocksdorp
370000
kosten koper
271 m²

Perceeloppervlakte

80 m²

Woonoppervlakte

B

Energielabel

3

Slaapkamers

1988

Bouwjaar

370000

kosten koper

271 m²

Perceeloppervlakte

80 m²

Woonoppervlakte

B

Energielabel

3

Slaapkamers

1988

Bouwjaar

    Omschrijving

    Te koop: een gemoderniseerde, vrijstaande recreatiewoning op een ruim perceel van 271 m² eigen grond, gelegen op vakantiepark De Krim. De woning is uitstekend onderhouden, biedt comfortabel verblijf en ligt op korte afstand van strand, duinen en natuurgebieden.

     Het vakantiegevoel begint zodra u op de boot naar Texel zit... De frisse zeelucht, gecombineerd met het vooruitzicht op rust, ruimte en natuur, maakt deze bestemming bijzonder aantrekkelijk.

    Geschikt voor eigen gebruik én/of (gedeeltelijke) verhuur, een ideale combinatie van recreatie en rendement.

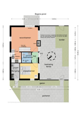
     Entree in de hal met  toegang tot de badkamer en doorloop naar de woonkamer. De woonkamer is verzorgd afgewerkt en profiteert van veel daglicht dankzij de grote raampartijen. De open haard draagt bij aan een aangename sfeer, ideaal voor ontspannen gebruik tijdens de koudere dagen.

     De schuifpui naar het terras zorgt voor een vloeiende overgang tussen binnen- en buitenruimte, wat het wooncomfort vergroot.

    Aansluitend de half open keuken. De keuken beschikt over diverse moderne inbouwapparatuur, en biedt voldoende werk- en opbergruimte.

     In de hal bevindt zich de nette badkamer. Deze is voorzien van toilet, wastafelmeubel en een doucheruimte. De slaapkamer op de begane grond heeft uitzicht op de omsloten tuin.
    Ziet u zichzelf hier al zitten, zo ‘s ochtends vroeg met een vers gezet kopje koffie in de tuin? Ook hier geldt: netjes afgewerkt en aangenaam licht.

     Middels de open trap in de woonkamer bereikt u de verdieping met toegang tot twee slaapkamers en een badkamer.

    De onverwoestbare linoleum vloer op de gehele verdieping is in een warme roodtint.

     Beide kamers zijn netjes afgewerkt en geschikt voor meerdere slaapplaatsen.

    Ook op de verdieping is een moderne tweede badkamer aanwezig, voorzien van een  zwevend toilet, een wastafelmeubel en een doucheruimte. Het grote dakraam zorgt voor een prachtige lichtinval en biedt extra ventilatie.

     Een heerlijke plek om te genieten!

    Rondom de woning ligt een fijne beschutte tuin, met aan de zijkant een bestraat terras direct grenzend aan de woning en hier vindt u zowel een plek om te genieten in de zon als ook in de schaduw. Aan de voorkant van de woning bevindt zich een handige buitenom bereikbare berging. Hier vindt u de opstelplaats voor de HR Cv-ketel, en is er voldoende ruimte voor het opbergen van spullen of het stallen van fietsen.

    Parkeren kan eenvoudig op eigen terrein aan de straatzijde, zodat u altijd verzekerd bent van een plek direct bij de woning.

    Fijne recreatiewoning die rust en ruimte biedt op het mooie Texel.

    Wilt u deze recreatiewoning komen bekijken?

    Neem dan contact op met ons kantoor voor het maken van een afspraak!

    Algemeen

    Type woning
    Vrijstaande recreatiewoning
    Hoofdcategorie
    Recreatiewoning
    Slaapkamers
    3
    Badkamers
    2
    Onderhoud binnen
    Goed
    Onderhoud buiten
    Goed
    Aanvaarding
    In overleg
    Soort dak
    Lessenaars dak pannen gedekt
    Type inrichting
    Gemeubileerd
    Comfort
    Normaal
    Bouwjaar
    1988
    Publicatie datum
    14 November 2025

    Energie

    Energielabel
    B. Geldig tot 02-12-2034
    Verwarming
    Open haard
    HR-CV ketel merk en bouwjaar
    Vaillant
    Isolatie
    Grotendeels geïsoleerd
    Type warmwater voorziening
    HR CV ketel

    Oppervlakten & Inhoud

    Perceeloppervlakte
    271 m²
    Gebruiksoppervlakte woning
    80 m²
    Inhoud woning
    280 m³

    Kadastrale gegevens

    Gemeente
    Texel
    Sectie
    A
    Nummer(s)
    4698
    Eigendomsgegevens
    Volle eigendom

    Buiten & Tuin

    Soort tuin
    Tuin rondom
    Kwaliteit tuin
    Verzorgd
    Parkeergelegenheid
    Op eigen terrein

    Indeling verdieping

    1e verdieping
    Overloop, Badkamer
    Overig 1e verdieping
    2 slaapkamers

    Extra's

    Overige bijzonderheden
    Rookkanaal, Schuifpui

    Roggeslootweg 315

    Brochure_Roggeslootweg_315_gecomprimeerd.pdf
    Roggeslootweg 315
    1795 JX De CocksdorpTexel