Skip to main content

Vliestraat 22

  • 1794 AV Oosterend
Nieuw Gewijzigd
395000
k.k.
299 m²

Perceeloppervlakte

114 m²

Woonoppervlakte

F

Energielabel

2

Slaapkamers

1960

Bouwjaar

395000

price
k.k.

299 m²

Perceeloppervlakte

114 m²

Woonoppervlakte

F

Energielabel

2

Slaapkamers

1960

Bouwjaar

    Omschrijving

    Deze fraaie half vrijstaande woning is gelegen nabij het centrum van Oosterend op een perceel van 299 m² eigen grond.

    Dit goed onderhouden woonhuis is de moeite van een bezichtiging waard en zeker om met eigen ogen te aan schouwen hoe ruim het is. Zodra je hier binnenstapt voel je je thuis...  

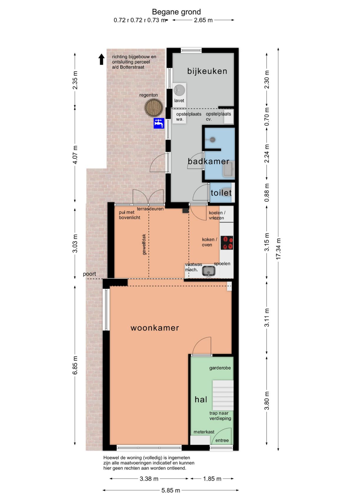
    Indeling | In de nette hal met trapopgang bevindt zich de meterkast. Op de vloer ligt een warmkleurige eikenvloer welke is doorgetrokken over de gehele benedenverdieping (met uitzondering van de bijkeuken). Onder de trap is een garderobe gesitueerd.

    Door de ramen aan de voor– en zijkant, alsmede de openslaande deuren aan de achterzijde heeft de woonkamer een prachtige lichtinval.

    Boven de openslaande deuren aan de achterzijde bevindt zich een speelse (ronde) raampartij.

    De gezellige keuken in hoekopstelling is uitgerust met een gasfornuis, afzuigkap, oven, vaatwasser en een vrijstaande koelvriescombinatie, en biedt voldoende opbergruimte door middel van meerdere lades en kastruimte.

    Via de keuken kom je in de hal met separaat toilet, een eenvoudige nette badcel welke volledig is betegeld en voorzien van douche en wastafel.

    In de bijkeuken is de opstelling voor de wasmachine en droger, en een deur welke toegang biedt tot de tuin.

    Verdieping | Op de eerste verdieping is de overloop met toegang tot 2 ruime slaapkamers, toilet (met toegang tot het dakterras) en een houten trap naar de zolder.

    Zolder | De zolder met dakraam is middels de houten trap bereikbaar en biedt voldoende opberg ruimte en een extra slaapplaats. Het is middels een luik afsluitbaar.

    Tuin | Achterin de goed onderhouden tuin is een extra tuinhuis/garage/ berging aanwezig, ideaal voor de stalling van bijvoorbeeld je fietsen en/of tuinspullen. Hier kun je mogelijk een atelier– verblijf– of hobbyruimte van maken.

    Via de houten open trap is de zolder bereikbaar met voldoende opbergruimte. Door de grote dakramen is hier voldoende licht aanwezig.

    De woning heeft een poort aan de zijkant van het huis en een ontsluiting aan de achterzijde met toegang tot de Botterstraat en het grote openbare parkeerterrein.

    Heerlijk wonen nabij het gezellige centrum van Oosterend en helemaal instapklaar.

    Wordt dit jouw nieuwe stek? Nieuwsgierig geworden? Neem contact met ons op voor een bezichtiging.

    Algemeen

    Type woning
    Half vrijstaande woning
    Hoofdcategorie
    Permanente woning
    Slaapkamers
    2
    Badkamers
    1
    Onderhoud binnen
    Normaal
    Onderhoud buiten
    Matig
    Aanvaarding
    In overleg
    Soort dak
    Zadeldak, pannen gedekt
    Comfort
    Normaal
    Bouwjaar
    1960
    Publicatie datum
    04 March 2026

    Energie

    Verwarming
    HR-CV ketel
    Type brandstof CV ketel
    Gas
    HR-CV ketel merk en bouwjaar
    Vaillant
    Type warmwater voorziening
    HR CV ketel

    Oppervlakten & Inhoud

    Perceeloppervlakte
    299 m²
    Gebruiksoppervlakte woning
    114 m²
    Inhoud woning
    376 m³

    Kadastrale gegevens

    Gemeente
    Texel
    Sectie
    M
    Nummer(s)
    217
    Eigendomsgegevens
    Volle eigendom

    Buiten & Tuin

    Soort tuin
    Voortuin, Zijtuin, Achtertuin
    Parkeergelegenheid
    Openbaar parkeren

    Indeling verdieping

    1e verdieping
    Overloop, Toilet
    Overig 1e verdieping
    Op de verdieping treft u 2 slaapkamers.
    2e verdieping/zolder
    Bergruimte

    Bergruimte

    Soort bergruimte
    Vrijstaand, Steen
    Gebruiksoppervlakte
    27 m²
    Aanvullende eigenschappen

    Het bijgebouw in de achtertuin kan dienen als tuinhuis, garage en/of berging. Hier kun je mogelijk ook een atelier-, verblijf- of hobbyruimte van maken. 

    Extra's

    Overige bijzonderheden
    Natuurlijke ventilatie

    Vliestraat 22

    Brochure_Vliestraat_22.pdf
    Vliestraat 22
    1794 AV OosterendTexel