Skip to main content

Californieweg 167

  • 1796 PM DE KOOG
Nieuw Gewijzigd
475000
k.k.
502 m²

Perceeloppervlakte

59 m²

Woonoppervlakte

C

Energielabel

3

Slaapkamers

1963

Bouwjaar

475000

price
k.k.

502 m²

Perceeloppervlakte

59 m²

Woonoppervlakte

C

Energielabel

3

Slaapkamers

1963

Bouwjaar

    Omschrijving

    Op een rustige, groene locatie op Park Vredelust bevindt zich deze sfeervolle geschakelde recreatiebungalow. Gelegen op een royaal perceel van maar liefst 502 m² eigen grond, en op korte afstand van bos, strand en duinen, is dit de ideale plek voor wie op zoek is naar rust, ruimte en comfort.

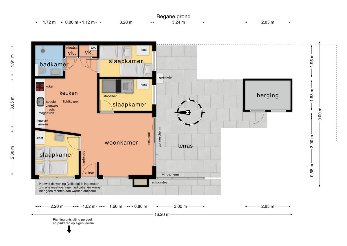
    Als je de woonkamer binnenstapt voel je je direct ‘thuis’. Dankzij de grote raampartijen geniet u hier van een prachtige lichtinval. De warme natuurtinten in het interieur zorgen voor een harmonieuze en ontspannen uitstraling. 
    De knusse zithoek biedt uitzicht op de tuin en via de schuifpui heeft u direct toegang tot het terras en de riante, groene tuin. De drempelvrije vloer met onderhoudsvriendelijke plavuizen geeft het geheel een strakke en praktische afwerking.

    De open keuken vormt een echte eyecatcher. De lichtkoepel zorgt voor extra daglicht en versterkt het ruimtelijke gevoel. De keuken is compleet uitgerust met onder andere een gaskookplaat, koelkast en vaatwasser, en biedt alles wat u nodig heeft voor een comfortabel verblijf.

    De bungalow beschikt over drie slaapkamers en is ingericht voor zes personen. Ideaal voor gezinnen of stellen die samen willen genieten. De kamers zijn praktisch ingedeeld en voorzien van voldoende kastruimte, waarbij één slaapkamer beschikt over een stapelbed.

    De moderne badkamer is netjes afgewerkt en functioneel ingericht met een inloopdouche, wastafel en toilet. Dankzij de aanwezige wandbeugels is de woning tevens geschikt voor mindervaliden.

    De royale, door groen omsloten tuin biedt veel privacy en is een heerlijke plek om volledig tot rust te komen. Het terras is voorzien van een zonnescherm, waardoor u buiten zowel van de zon als heerlijk in de schaduw kunt genieten.
    In de tuin bevindt zich bovendien een vrijstaand houten tuinhuis, ideaal voor het opbergen van bijvoorbeeld tuinmeubilair en fietsen.

    Aan de voorzijde van de bungalow is parkeergelegenheid aanwezig.

    Kortom: een fijne, compleet ingerichte recreatiebungalow op een prachtige locatie, waar u in alle rust kunt genieten van het buitenleven. Komt u deze leuke bungalow bewonderen?

    Algemeen

    Type woning
    Geschakelde vakantiewoningen
    Hoofdcategorie
    Recreatiewoning
    Slaapkamers
    3
    Badkamers
    1
    Onderhoud binnen
    Goed
    Onderhoud buiten
    Goed
    Aanvaarding
    In overleg
    Soort dak
    Plat dak
    Type inrichting
    Gemeubileerd
    Comfort
    Normaal
    Bouwjaar
    1963
    Publicatie datum
    26 March 2026

    Energie

    Energielabel
    C. Geldig tot 20-12-2033
    Verwarming
    HR-CV ketel
    Type brandstof CV ketel
    Gas
    HR-CV ketel merk en bouwjaar
    Intergas bouwjaar 2017
    Isolatie
    Deels geïsoleerd
    Type warmwater voorziening
    HR CV ketel

    Oppervlakten & Inhoud

    Perceeloppervlakte
    502 m²
    Gebruiksoppervlakte woning
    59 m²
    Inhoud woning
    186 m³

    Kadastrale gegevens

    Gemeente
    Texel
    Sectie
    T
    Nummer(s)
    809
    Eigendomsgegevens
    Eigen grond (eeuwig durend recht van erfpact € 0,43 p/j)

    Buiten & Tuin

    Soort tuin
    Tuin rondom
    Kwaliteit tuin
    Verzorgd
    Parkeergelegenheid
    Op eigen terrein

    Kostenpost pand

    Bijdrage VVE per maand
    124

    Bergruimte

    Soort bergruimte
    Vrijstaand, Hout
    Gebruiksoppervlakte
    5 m²

    Extra's

    Overige bijzonderheden
    Schuifpui

    Californieweg 167

    Brochure_Californieweg_167_gecomprimeerd_2.pdf
    Californiëweg
    1796 PM DE KOOGTexel