Skip to main content

De Ruyterstraat 58

  • 1792 AK Oudeschild
Verkocht onder voorbehoud
379500
k.k.
115 m²

Perceeloppervlakte

63 m²

Woonoppervlakte

B

Energielabel

2

Slaapkamers

1955

Bouwjaar

379500

price
k.k.

115 m²

Perceeloppervlakte

63 m²

Woonoppervlakte

B

Energielabel

2

Slaapkamers

1955

Bouwjaar

    Omschrijving

    Wonen met uitzicht op de Waddendijk!

    Aan de voet van de Waddendijk ligt deze instapklare woning, gelegen op een perceel van 115 m² eigen grond. De woning beschikt over een prettige achtertuin, twee slaapkamers en een net energielabel B.

    Achter de karakteristieke witte gevel schuilt een sfeervol huis dat met zorg is onderhouden en waar je zó kunt gaan wonen. Vanuit de voorzijde van de woning heb je een groen uitzicht en kun je genieten van de prachtige zonsopkomsten in de ochtend. Een heerlijke plek om te wonen, in een gezellige woonstraat met openbaar parkeren direct nabij.

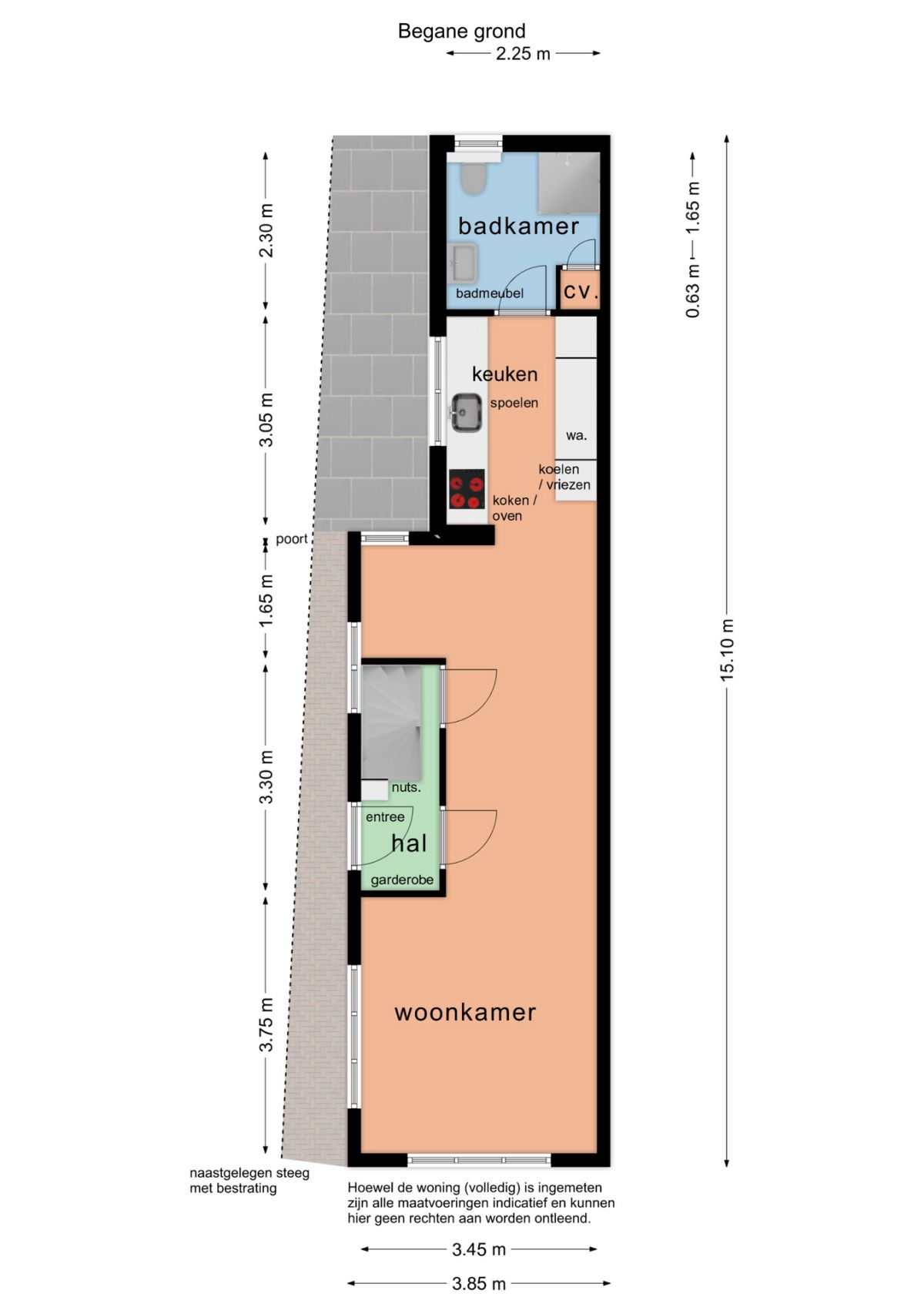
    Indeling:
    De entree bevindt zich aan de zijkant van de woning, met binnenkomst in de hal waar ook de vernieuwde meterkast is geplaatst. Vanuit de hal stap je de lichte woonkamer binnen, waar meteen de prettige sfeer opvalt.

    De woonkamer is afgewerkt met een plavuizenvloer met vloerverwarming, gestucte muren en inbouwspots in het plafond. Er is voldoende ruimte voor een eethoek, waar je gezellig kunt tafelen met familie of vrienden.
    De woonkamer is praktisch ingedeeld, netjes afgewerkt en voelt dankzij de neutrale kleuren en het natuurlijke licht bijzonder aangenaam aan.

    De keuken is keurig onderhouden en voorzien van voldoende werk- én kastruimte. Hier vind je onder andere een vaatwasser, kookplaat, oven, koel-/vriescombinatie en de aansluiting voor de wasmachine. Vanuit de keuken is er een doorgang naar de badkamer, die is uitgerust met een douche, wastafelmeubel en toilet.

    Via de woonkamer is de trapopgang naar de eerste verdieping bereikbaar.

    Eerste verdieping:
    Op de eerste verdieping bevinden zich twee slaapkamers, waarvan één iets ruimer van opzet. Beide kamers beschikken over een dakkapel, wat zorgt voor extra ruimte, meer daglicht en een aangename open sfeer. Op de overloop is een airco-installatie geplaatst en is er ruimte voor een kledingkast of bergruimte.

    Buitenruimte:
    Achter de woning ligt een onderhoudsvriendelijke, strak aangelegde tuin met ligging op het noordwesten. De tuin is grotendeels bestraat en voorzien van een border met beplanting.

    Een bijzonder detail: in de tuin bevindt zich een originele waterput! Aan de achterzijde is bovendien een knusse veranda, waar je heerlijk beschut kunt zitten. Aangrenzend vind je een berging, ideaal voor fietsen en/of tuingereedschap. Via de zijpoort loop je gemakkelijk naar de voorkant van de woning.

    Hier woon je rustig, met de haven letterlijk om de hoek, parkeerplaatsen voor de deur en alle voorzieningen van Oudeschild binnen handbereik. 

    Een ideale, geheel instapklare woning!

    Algemeen

    Type woning
    Tussen/middenwoning
    Hoofdcategorie
    Permanente woning
    Slaapkamers
    2
    Badkamers
    2
    Onderhoud binnen
    Goed
    Onderhoud buiten
    Goed
    Aanvaarding
    In overleg
    Soort dak
    Zadeldak
    Type inrichting
    Leeg
    Comfort
    Normaal
    Bouwjaar
    1955
    Publicatie datum
    11 november 2025

    Energie

    Energielabel
    B. geldig tot 08-07-2032
    Verwarming
    HR-CV ketel
    Type brandstof CV ketel
    Gas
    HR-CV ketel merk en bouwjaar
    Remeha bouwjaar 2009
    Isolatie
    Grotendeels
    Type warmwater voorziening
    HR CV ketel

    Oppervlakten & Inhoud

    Perceeloppervlakte
    115 m²
    Gebruiksoppervlakte woning
    63 m²
    Inhoud woning
    197 m³

    Kadastrale gegevens

    Gemeente
    Texel
    Sectie
    D.
    Nummer(s)
    4869
    Eigendomsgegevens
    Volle eigendom

    Buiten & Tuin

    Soort tuin
    Achtertuin
    Gesitueerd op
    Noordwesten
    Kwaliteit tuin
    Onderhoudsvriendelijk
    Parkeergelegenheid
    Openbaar parkeren

    Indeling verdieping

    1e verdieping
    Overloop
    Overig 1e verdieping
    Op de verdieping zijn 2 slaapkamers

    Extra's

    Overige bijzonderheden
    Airconditioning

    De Ruyterstraat 58

    Brochure_De_Ruyterstraat_58_gecomprimeerd.pdf
    De Ruyterstraat 58
    1792 AK OudeschildTexel