Skip to main content

Dorpsstraat 3

  • 1796 NR DE KOOG
245000 Koop
4500
225 m²

Perceeloppervlakte

5

Slaapkamers

1850

Bouwjaar

245000 Koop

price

4500

price

225 m²

Perceeloppervlakte

5

Slaapkamers

1850

Bouwjaar

    Omschrijving

    Nieuw restaurant Grand Cafe op hoek locatie. Dit mooie restaurant is een lust voor het oog!
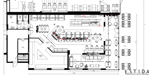
    Het restaurant heeft een oppervlakte van ca. 225 m2. en biedt 100 zitplaatsen binnen en een terras met 20 zitplaatsen voor de deur.
    De bovenwoning bestaat uit 1 grote verdieping met grote studio en 5 gastenkamers allen voorzien van eigen sanitair en een centrale keuken.

    Koop:  Exploitatie € 245.000,-
    Huur:  Bedrijfsgedeelte per maand € 4.500,-
    Optioneel:
    Huur: Woningdeel bestaande uit een studio en 5 kamers met eigen sanitair per maand € 2.500,-

    Objectomschrijving 
    Een eind 2024 compleet nieuw gebouwd en bijzonder hoogwaardig en compleet ingericht restaurant met als insteek een laagdrempelig familierestaurant, de locatie en inrichting lenen zich echter voor meerdere concepten.

    Ligging
    De aangeboden locatie ligt op de Kop van de Dorpsstraat, de drukste straat van de Koog. Te midden van andere horecagelegenheden, diverse winkels, hotels en grenst aan de weg die leidt naar het Kogerstrand, het drukste strand van het eiland.
    Het is het eerste restaurant bij binnenkomst van de Koog.

    Indeling
    De entree aan de voorzijde in de pui die in zijn geheel kan worden geopend waardoor er een inpandig terras ontstaat, in het midden van de zaak de eilandbar en daaromheen zitgelegenheid, deels traditioneel maar er zijn ook diverse gezellige zitjes gecreëerd.
    Achterin is de ruim uitgevoerde keuken voorzien van de meest moderne materialen met een opslagruimte voor de koelingen en vriezers. Links achterin zijn de toiletten. 
    De woning bestaat uit 1 grote verdieping met grote studio en 5 gastenkamers allen voorzien
    van eigen sanitair en een centrale keuken.

    Bereikbaarheid
    Uitstekend bereikbaar op alle manieren met voldoende parkeergelegenheid in de directe omgeving.

    Doelgroep
    Veel gasten van het eiland, bezoekers en toeristen van het eiland Texel.

    Geschiedenis
    Op deze plek was in het verleden het razend populaire café Le Berry gevestigd, het pand was in de loop der jaren echter dusdanig verouderd dat ver/nieuwbouw noodzakelijk werd en dat is in 2024 gebeurd. Het huidige restaurant met inrichting is tot stand gekomen met het oog op een laagdrempelig familierestaurant, door omstandigheden moest de beoogde exploitant echter afhaken.

    Locatie:
    Texel is het grootste Waddeneiland van Nederland en heeft een oppervlakte van 162 km2. Het eiland is 24 km lang en 9 km breed. Er wonen op Texel ca. 14.000 mensen. Jaarlijks wordt het eiland door meer
    dan een miljoen toeristen bezocht.
    In tegenstelling tot vroeger, toen er nog sprake was van “een seizoen” loopt het toerisme tegenwoordig het hele jaar door met een piek in de zomermaanden. Op het eiland treft u zeven gezellige dorpen namelijk Den Burg, de Koog, de Cocksdorp, Oudeschild, den Hoorn, de Waal, Oosterend. De hoofdplaats van Texel is Den Burg. In de plaats De Koog zijn de meeste mogelijkheden om uit te gaan. Ieder dorpje heeft zo zijn eigen uitstraling en bijzonderheden.

    De Koog is de badplaats van Texel. Alleen een duinenrij scheidt het dorp van het strand en de zee. In het gezellige dorpscentrum vindt u vele leuke winkeltjes, terrassen, restaurants en cafés. Ook de omgeving is aantrekkelijk. Het dorp ligt op loopafstand van verschillende natuurgebieden met prachtige fiets- en wandelpaden. Ook sportliefhebbers komen er aan hun trekken. Als je van uitgaan houdt, moet je in De Koog zijn. Na een lekker diner de kroeg in of een terrasje pakken met zicht op het uitgaanspubliek. Regelmatig worden muziekevenementen georganiseerd, met als vaste prik het Tropical Sea Festival in het laatste weekend van augustus.

    Bijzonderheden
    • Goede locatie bij de ingang van het dorp.
    • Een bijzonder mooie locatie voor een echt Grand Café.
    • Hoogwaardig en splinternieuw ingericht, er wordt gekookt op elektra.
    • Marktconforme huur.
    • Bijzonder sfeervolle zaak.
    • Prachtige woning met goede verhuurmogelijkheden.

     

    Algemeen

    Type woning
    Bedrijfspand met bovenwoning
    Hoofdcategorie
    Bedrijfs onroerend goed
    Slaapkamers
    5
    Onderhoud binnen
    Goed
    Onderhoud buiten
    Goed
    Bouwjaar
    1850
    Publicatie datum
    19 februari 2026

    Energie

    Energielabel
    Volgt nog
    Verwarming
    HR-CV ketel
    Type brandstof CV ketel
    Gas
    Isolatie
    Goed geisoleerd
    Type warmwater voorziening
    HR CV ketel

    Oppervlakten & Inhoud

    Perceeloppervlakte
    225 m²

    Kadastrale gegevens

    Gemeente
    Texel
    Sectie
    T
    Nummer(s)
    1534

    Extra's

    Overige bijzonderheden
    Mechanische afzuiging, Airconditioning, Openslaande deuren

    Dorpsstraat 3

    Dorpsstraat_3_compressed_1_copy_1.pdf
    Dorpsstraat 3
    1796 NR DE KOOGTexel