Image

Kogerstraat 57 | 1791 EP Den Burg | telefoon: 0222 - 313 025 | info@texelvastgoed.nl

BOSRANDWEG 409 C - DE KOOG
409 Bosrandweg, De Koog, Noord-Holland, 1796 NE, Nederland € 850.000 vrij op naam, excl. BTW
Recreatiewoningen
16
Kenmerken
Type woning:
Nieuw te bouwen recreatiewoning
Slaapkamers:
3
Badkamers:
2
Onderhoud binnen:
Uitstekend
Onderhoud buiten:
Uitstekend
Aanvaarding
In overleg | Oplevering Q2 2026
Soort dak:
Tentdak | Rietgedekt
Publicatie datum:
sept 23, 2025
Energie
Energielabel:
Naar verwachting A+
Isolatie:
Volledig geïsoleerd
Verwarming:
warmtepomp, vloerverwarming geheel
Type isolatie:
Volledig geïsoleerd
Type warmwater voorziening:
Elektrische boiler
Kadastrale gegevens
Gemeente:
Texel
Sectie:
T
Nummer(s):
3726
Eigendomsgegevens:
Volle eigendom
Perceeloppervlakte:
409 m³
Tuin
Type
Tuin rondom
Bouwjaar woning
Bouwjaar:
2025/2026
Woonoppervlakte
Gebruiksoppervlakte woning:
ca. 98 m²
Permanente bewoning en/of recreatieve bewoning
Type
Recreatie woning
Comfort
Type
Luxe
Parkeerfaciliteiten
Type
Openbaar parkeren, Op eigen terrein
Overige bijzonderheden
Type
Mechanische afzuiging, Natuurlijke ventilatie
Bijgewerkt op: sept 24, 2025

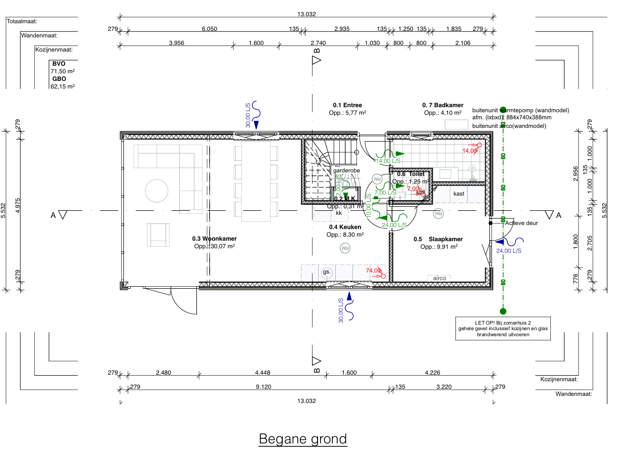
Op een fantastische locatie, direct aan de bosrand gelegen en op korte afstand van strand, duinen en het levendige dorp De Koog, wordt binnenkort deze schitterende vrijstaande recreatiewoning gerealiseerd. Een rietgedekte recreatiewoning gekenmerkt door een modern en stijlvol ontwerp, en is gelegen op een perceel van circa 409 m² eigen grond. 

Een unieke kans om eigenaar te worden van een luxe nieuwbouw recreatiewoning op Texel! Een woning die garant staat voor comfort, stijl en zorgeloos genieten en/of verhuren. 

De toekomstige woning maakt deel uit van een kleinschalig parkje en wordt geheel nieuw gebouwd (2025/2026). Alle luxe en comfort van nu worden gecombineerd met de warme uitstraling van een rietgedekt dak en een doordachte indeling. Binnen treft u maar liefst drie slaapkamers en twee badkamers. De woning kan perfect dienen voor de verhuur of in combinatie met een deel eigen gebruik. Alles is mogelijk!

Nieuwbouw, luxe & stijlvol

De woning wordt turnkey verkocht: volledig netjes afgewerkt en opgeleverd met een hoogwaardige keuken en sanitair. U hoeft zich dus niet meer te bekommeren om de basis; alles is geregeld. De inrichting en inventaris zijn niet inbegrepen, zodat u de woning volledig naar eigen wens kunt inrichten. De tuin wordt netjes aangelegd, waardoor u vanaf oplevering direct kunt genieten. De fraaie en zonnige tuin is ideaal gelegen op het zuiden.

De reeds gerealiseerde, identieke woningen op dit park laten zien dat dit een bijzonder interessante mogelijkheid is: zij genereren een gemiddelde bruto verhuuromzet van circa €65.000,- per jaar, terwijl er nog voldoende weekenden en weken beschikbaar blij ven om zelf van de woning te genieten.

Daarmee biedt deze woning het beste van twee werelden: zorgeloos genieten van uw eigen plek op Texel én/of de mogelijk heid om een aantrekkelijk rendement te realiseren. 

Neem contact op met ons kantoor voor meer informatie. Wij vertellen u graag meer over deze nieuw te bouwen recreatiewoning! 

De woning ligt direct aan het bos en op korte afstand van de bruisende badplaats De Koog. Hier vindt u gezellige terrassen, restaurants, winkels en alle voorzieningen voor een comfortabel verblijf. Tegelijkertijd ervaart u direct de rust van het eiland: binnen enkele minuten staat u in de uitgestrekte duinen of wandelt u door de bossen. Ook het strand ligt op korte afstand, waardoor zee en natuur altijd binnen handbereik zijn.

* De getoonde foto’s zijn afkomstig van de naastgelegen woning(en). De nieuw te bouwen woning zal grotendeels identiek worden uitgevoerd; kleine afwijkingen in details zijn mogelijk.

We hebben een PDF-presentatie gemaakt met alle essentiële informatie over: BOSRANDWEG 409 C - DE KOOG .
Image

Kogerstraat 57
1791 EP Den Burg
Telefoon: 0222 - 313 025
E-mail: info@texelvastgoed.nl

Ontwerp & Techniek: WEBJONGENS