Image

Kogerstraat 57 | 1791 EP Den Burg | telefoon: 0222 - 313 025 | info@texelvastgoed.nl

GASTHUISSTRAAT 76 - DEN BURG
76 Gasthuisstraat, Den Burg, Noord-Holland, 1791 GM, Nederland ONDER VOORWAARDEN VERKOCHT
Permanente woningen
40
Kenmerken
Type woning:
2-onder-een-kap-woning
Slaapkamers:
3
Badkamers:
1
Onderhoud binnen:
Matig
Onderhoud buiten:
Normaal
Aanvaarding
Per direct
Soort dak:
Zadeldak, pannen gedekt
Publicatie datum:
okt 21, 2025
Energie
Energielabel:
E
Verwarming:
HR-CV ketel
HR-CV ketel merk en bouwjaar:
HR Combi ketel intergas 2014
Type warmwater voorziening:
HR CV ketel
Type brandstof CV ketel:
Gas
Kadastrale gegevens
Gemeente:
Texel
Sectie:
O
Nummer(s):
2264
Eigendomsgegevens:
volle eigendom
Perceeloppervlakte:
ca. 340 m²
Tuin
Type
Voortuin, Zij tuin, Achtertuin
Kwaliteit tuin:
Goed
Garage/berging/schuur/loods
Type
Vrijstaand
Gebruiksoppervlakte:
ca. 8 m²
Bouwjaar woning
Bouwjaar:
1947
Woonoppervlakte
Gebruiksoppervlakte woning:
85 m²
Inhoud woning:
300 m³
Permanente bewoning en/of recreatieve bewoning
Type
Permanente bewoning
Comfort
Type
Eenvoudig
Inrichting
Type
Leeg
Wat voor opdracht is het
Type
Particulier
Indeling woning, begane grond
Type
Entree, Woonkamer, Trapkast/kelderkast, Gesloten keuken, Toilet, Binnen berging
Indeling woning, verdieping
Type
Overloop, Slaapkamer, Inbouwkast, Badkamer
Overige:
Vlizo trap naar de bergzolder
Bijgewerkt op: nov 13, 2025

Te koop: Twee-onder-een-kapwoning nabij het centrum van Den Burg

Namens Woontij bieden wij deze twee-onder-een-kapwoning aan, gelegen op een aantrekkelijke locatie vlak bij het centrum van Den Burg. De woning beschikt over een royale achtertuin, drie slaapkamers en volop mogelijkheden om naar eigen smaak te moderniseren.

Indeling

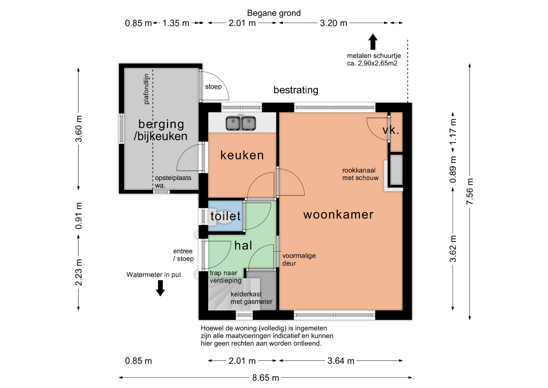
Begane grond:
Binnenkomst via de hal met vloerbedekking, trapopgang, kelderkast en toiletruimte. De toiletruimte is voorzien van tegelboard met asbesthoudend materiaal. Vanuit de hal heeft u toegang tot zowel de woonkamer als de keuken.

De lichte doorzonwoonkamer biedt een fijne leefruimte met prettig uitzicht aan voor- en achterzijde.
De keuken, gelegen aan de achterzijde van de woning, is voorzien van een eenvoudig keukenblok en biedt toegang tot de bijkeuken.

In de bijkeuken vindt u de aansluitingen voor wasmachine en droger. Ook is er een deur naar de omsloten, ruime achtertuin.

Eerste verdieping:
Overloop met toegang tot drie slaapkamers, allen voorzien van een eigen bergkast. De eenvoudige, wat gedateerde badkamer beschikt over een douche, wastafel en een raam voor natuurlijke ventilatie.

Via een vlizotrap is de bergzolder bereikbaar, waar zich ook de HR-combiketel bevindt.

Buitenruimte:
De netjes onderhouden achtertuin is voorzien van een grasmat, een metalen tuinschuurtje en een watermeterput. Dankzij de poort aan de zijkant is de achtertuin ook via buitenom bereikbaar. De voortuin is eveneens verzorgd en biedt de mogelijkheid om parkeren op eigen terrein te realiseren.

Bijzonderheden:

  • Gelegen op korte afstand van het centrum van Den Burg

  • Drie slaapkamers

  • Ruime, omsloten achtertuin

  • Vlizotrap naar zolder met cv-installatie

  • Asbesthoudend materiaal aanwezig in toiletruimte

  • Mogelijkheid tot parkeren op eigen terrein

  • Woning dient gemoderniseerd te worden

Let op: Deze woning betreft een zogenaamde Woontij-woning.
Huurders van Stichting Woontij die een huurwoning achterlaten hebben tot en met 31 oktober 2025 voorrang op de niet-huurders.
Niet-huurders kunnen zich wel gewoon aanmelden.

We hebben een PDF-presentatie gemaakt met alle essentiële informatie over: GASTHUISSTRAAT 76 - DEN BURG .
2D Begane grond
3D Begane grond
2D Verdieping
3D Verdieping
2D Zolder
3D Zolder
Image

Kogerstraat 57
1791 EP Den Burg
Telefoon: 0222 - 313 025
E-mail: info@texelvastgoed.nl

Ontwerp & Techniek: WEBJONGENS