Skip to main content

Kikkertstraat 17

  • 1795 AA De Cocksdorp
Uitgelicht
1350000
k.k.
1.120 m²

Perceeloppervlakte

244 m²

Woonoppervlakte

A

Energielabel

6

Slaapkamers

1880

Bouwjaar

1350000

price
k.k.

1.120 m²

Perceeloppervlakte

244 m²

Woonoppervlakte

A

Energielabel

6

Slaapkamers

1880

Bouwjaar

    Omschrijving

    Centraal in het dorp gelegen een riant karakteristiek woonhuis, thans mede in gebruik als B&B “de Moerbei” op een royaal perceel eigen grond van maar liefst 1.120 m² gelegen.

    Serieus een daverend (en opvallend) pand, met een rijke geschiedenis, wat in de hoofdstraat van het dorp heerlijk prominent staat te zijn.

    Veel comfort, luxe en duurzaamheidsmaatregelen. De woning beschikt over een keurig energielabel A. In deze woning zijn drie B&B kamers (toegestaan), dit blijft ook na verkoop van kracht. 

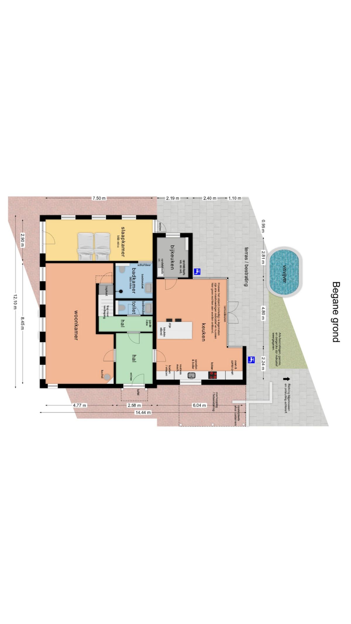
    De woonkamer bevindt zich aan de voorzijde van het huis. Veel licht en zicht én een rookkanaal voor een kachel, als u dat wenst.

    De woonruimtes zijn modern en hebben een nette afwerking. De overige leefruimtes sluiten naadloos aan op het strakke design van het huis.

    De royale en moderne woonkeuken is voorzien van hoogwaardige inbouwapparatuur zoals een moderne kookplaat, oven, combi-oven, vaatwasser, koelkast, vrieskast en een Quooker. Het slimme gebruik van opbergruimte zorgt ervoor dat alle benodigdheden netjes kunnen worden opgeborgen.  Of u nu een culinaire maaltijd bereidt of gezellig met familie en vrienden dineert, deze woonkeuken biedt de ideale setting. Kortom, deze woonkeuken is de ideale plek voor koken, eten en samen zijn, met alle luxe die u zich kunt wensen.

    De bijna volglazen zij– en achterpui (met openslaande deuren) biedt een fantastisch rustgevend tuincontact. 

    Op de 1e verdieping 3 ruime kamers: 2 kamers worden thans voor de B&B gebruikt en hebben beiden een aanliggende badkamer. Deze badkamers zijn voorzien van een douche, wastafelmeubel en toilet. Alles spic en span en in een eigentijdse uitvoering.

    1 kamer wordt voor privé gebruikt (Master-bedroom) en maakt gebruik van de privé-badkamer, deze heeft het échte wauw-effect. De sfeer, de keurige afwerking en de rustige kleurencombinatie zorgen voor een prachtig geheel. De badkamer beschikt over een inloopdouche, een dubbel wastafelmeubel en een vrijhangend toilet (uiteraard met vloerverwarming).

    Gaan we naar de zolder, dan treft u daar óók nog eens 2 riante slaapkamers aan. Beiden slaapkamers beschikken over een vaste kast en een dakraam.

    De 3e B&B kamer bevindt zich op de begane grond en is derhalve uitstekend geschikt voor gebruik door minder-validen. Vanuit deze kamer loopt u naar de royale badkamer. Keurig van opzet en van alle gemakken voorzien.

    De tuin achter het huis is voorzien van meerdere terrasjes, een imposante vijverpartij, een tuinhuis, fraaie beplanting en (uiteraard) de stokoude moerbeiboom.

    De tuin is werkelijk fantastisch!
    Smaakvol aangelegd met veelzijdige beplanting die kleur en sfeer brengt in elk seizoen. Deze royale tuin is een waar paradijs. Omringd door weelderig groen, vormt deze buitenruimte en oase van rust en privacy. De verschillende verzorgde terrassen bieden voor elk moment van de dag een perfecte plek om te genieten van de zon en/of schaduw. 

    Midden in de tuin treft u een vrijstaande berging aan voor het opbergen van uw tuin-meubelen en of materialen. Achter in de tuin is een nieuwe schuur gerealiseerd met een overkapping voor uw auto(‘s).

    Een achteruitgang richting de Ploosterstraat ontbreekt natuurlijk niet. Deze is voorzien van een elektrische poort.

    De luxe woning is uitgerust met veel extra’s, waaronder airco’s, screens, rookmelders, zonnepanelen (25 stuks in eigendom) en vloerverwarming in 2 badkamers.

    Het gehele pand is de afgelopen jaren voorzien van nieuwe kozijnen/ramen. De elektrische installatie werd in 2022 gekeurd.

    Niet vaak mogen we zo’n indrukwekkend pareltje aanbieden. Fantastisch wonen met (naar wens) prima inkomsten uit het verhuren van de B&B-kamers.

    Werkelijk alles aan dit huis klopt! 

    Laat u volledig door ons informeren en/of vraag een bezichtiging bij ons aan.

    Algemeen

    Type woning
    Vrijstaande woning met B&B
    Hoofdcategorie
    Permanente woning
    Slaapkamers
    6
    Badkamers
    4
    Onderhoud binnen
    Goed
    Onderhoud buiten
    Goed
    Aanvaarding
    In overleg
    Soort dak
    Schilddak
    Type inrichting
    Meubilering mogelijk
    Comfort
    Normaal
    Bouwjaar
    1880
    Publicatie datum
    12 december 2025

    Energie

    Verwarming
    HR-CV ketel, Houtkachel, Vloerverwarming gedeeltelijk
    HR-CV ketel merk en bouwjaar
    Nefit | 2016

    Oppervlakten & Inhoud

    Perceeloppervlakte
    1.120 m²
    Gebruiksoppervlakte woning
    244 m²
    Inhoud woning
    852 m³

    Kadastrale gegevens

    Gemeente
    Texel
    Sectie
    A
    Nummer(s)
    3147
    Eigendomsgegevens
    Volle eigendom

    Buiten & Tuin

    Soort tuin
    Tuin rondom
    Kwaliteit tuin
    Verzorgd en goed onderhouden
    Parkeergelegenheid
    Openbaar parkeren, Op eigen terrein

    Vloer

    Begane grond
    Beton
    Eerste verdieping
    Hout
    Tweede verdieping
    Hout

    Bergruimte

    Soort bergruimte
    Vrijstaand, Hout
    Gebruiksoppervlakte
    totaal ca. 54 m²

    Extra's

    Overige bijzonderheden
    Rookkanaal, Buitenzonwering, Zonnepanelen, Natuurlijke ventilatie, Schuifpui, Airconditioning

    Kikkertstraat 17

    brochure_Kikkertstraat_17_Gecomprimeerd.pdf
    Kikkertstraat 17
    1795 AA De CocksdorpTexel