Skip to main content

Kikkertstraat 9

  • 1795 AA De Cocksdorp
590000
kosten koper
480 m²

Perceeloppervlakte

1925

Bouwjaar

590000

kosten koper

480 m²

Perceeloppervlakte

1925

Bouwjaar

    Omschrijving

    Altijd al je eigen restaurant willen beginnen? Dan is dit nu je kans. Wij bieden aan een Bedrijfspand begane grond, bedrijfsexploitatie, inventaris, goodwill. Let op: Het betreft hier uitsluitend de begane grond van het pand.

    De Cocksdorp
    Het jongste dorp van de gemeente Texel. Het drukbezochte dorp heeft diverse winkeltjes en leuke restaurants met terrassen. In de zomer is er op donderdag de Durpermarkt. In de omgeving bevinden zich twee grote vakantieparken: De Krim en Landal Sluftervallei. Aan het eind van het dorp, achter de dijk ligt de Waddenzee. Vanaf hier ziet u hét symbool van Texel: de vuurtoren! Het eiland Texel trekt jaarlijks circa 2.500.000 toeristische bezoekers.

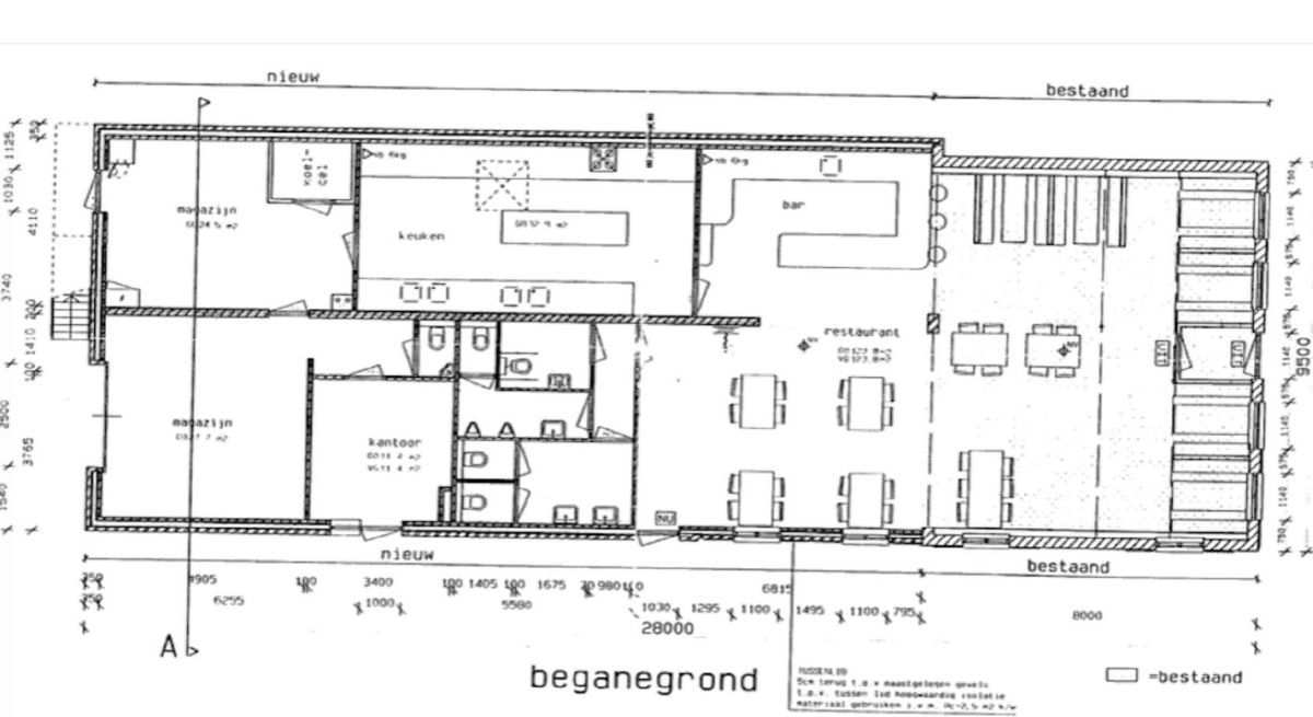
    Oppervlakte: VVO 145m²
    Overige ruimte begane grond 65m².
    Opslag begane grond 50m².
    Terras   70m².

    Capaciteit/aantal zitplaatsen: Restaurant 70, uitbreiding van het aantal zitplaatsen is, echter indien gewenst tot 90 zitplaatsen mogelijk.

    Openingstijden:
    Seizoen dagelijks van 11.00 - 19.00 uur. Buiten seizoen: zondag en maandag gesloten.

    Historie:
    Het restaurant is gevestigd in een pand uit het begin van de vorige eeuw. Voor 1976 was het in gebruik als bakkerij. In die tijd is er tevens een nieuwe kap opgezet en weer later een dakkapel. In

    2007 is het pand ingrijpend gerenoveerd.

    Doelgroep:
    Toeristen en ook veel Texelaars.

    Pand

    Bouwjaar: 1925 conform BAG-viewer.

    Gebouwd als: Woon-/winkelpand.

    Renovaties: Ja, in 2007 het horecabedrijfsgedeelte.

    Fundering: Op staal.

    Constructie/bouwstijl: Traditioneel en deels staalconstructie. Gevels: Metselwerk.

    Kozijnen: Hut en kunststof.

    Vloeren: Begane grond beton en verdieping hout.

    Plafonds: Systeem en schoon stucwerk.

    Kap: Samengesteld dak (deels mansarde/zadeldak

    gedekt met pannen en plat dak voorzien van bitumen).

    Juridische informatie:

    Rechtsvorm: Eenmanszaak.

    Transactievorm: Activa/Passiva, alleen de activa worden verkocht.

    Drank- en Horecawet: Er is een drank- en horecavergunning afgegeven.

    Terrasvergunning: Aanwezig.

    Brandveiligheid: Het bedrijf voldoet volgens de eigenaar aan alle gestelde

    eisen. Er is een gebruiksvergunning afgegeven.

    Brouwerijverplichtingen: Er zijn geen brouwerijverplichtingen.

    Speelautomatenverplichting: Er is geen speelautomatenverplichting van

    toepassing.

    Huur/bruikleenovereenkomst: De inventaris is in eigendom. Inrichtingseisen: Het bedrijf voldoet volgens opgave van de opdrachtgever

    aan de gestelde inrichtingseisen conform de Drank en Horecawet.

    Personeel: Er is 1 personeelslid in dienst die moet worden overgenomen.

    Wet milieubeheer: De melding in het kader van de AMvB Horecabedrijven is gedaan. De inrichting valt onder de werking van het nieuwe Besluit Horeca, Recreatie en Sport.

    Vetput: Er is een vetvangput aanwezig.

    Algemeen

    Type woning
    Bedrijfspand, commerciële ruimte
    Hoofdcategorie
    Bedrijfs onroerend goed
    Onderhoud binnen
    Goed
    Onderhoud buiten
    Goed
    Aanvaarding
    In overleg
    Bouwjaar
    1925
    Publicatie datum
    16 december 2025

    Oppervlakten & Inhoud

    Perceeloppervlakte
    480 m²

    Kadastrale gegevens

    Gemeente
    Texel
    Sectie
    A
    Nummer(s)
    6808
    Eigendomsgegevens
    Volle eigendom

    Bedrijfsruimte

    Is er bedrijfsruimte aanwezig?
    Ja
    Gebruiksoppervlakte bedrijfsruimte
    330 m³
    Type bedrijfsruimte mogelijkheid
    Ja

    Kikkertstraat 9

    Brochure_Koop_Kikkertstraat_9_-_De_Cocksdorp_gecomprimeerd.pdf
    Kikkertstraat 9
    1795 AA De CocksdorpTexel