Skip to main content

Julianastraat 5

  • 1791 AK Den Burg
Gewijzigd
565000
Kosten koper
390 m²

Perceeloppervlakte

85 m²

Woonoppervlakte

D

Energielabel

2

Slaapkamers

1911

Bouwjaar

565000

Kosten koper

390 m²

Perceeloppervlakte

85 m²

Woonoppervlakte

D

Energielabel

2

Slaapkamers

1911

Bouwjaar

    Omschrijving

    | Op dit moment geen bezichtigingen mogelijk |

    Op een fantastische locatie, in een charmante en karakteristieke woonstraat nabij het oude centrum van Den Burg, staat dit prachtige vrijstaande woonhuis uit 1911 mét vrijstaande garage/schuur (4x8m). Dit alles op een ruim perceel eigen grond van 390 m². Het woonhuis is grotendeels gerestaureerd en gerenoveerd, waardoor u kunt genieten van het beste van twee werelden: de charme van toen en het comfort van nu. 

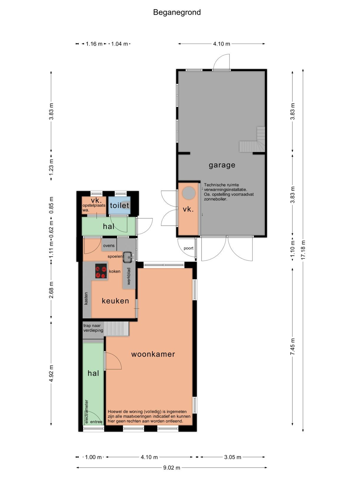
    U komt binnen in de knusse hal met toegang tot de woonkamer. Bij binnenkomst ervaart u direct het wauw-effect! De recent vernieuwde en gemoderniseerde woonkamer straalt sfeer en warmte uit. 

    In de woonkamer treft u prachtige authentieke glas-in-lood ramen die het karakter van de woning versterken.

    De volledig vernieuwde keuken is een echte blikvanger. Strak, stijlvol en tot in de puntjes afgewerkt. Dankzij de open verbinding met de woonkamer is er een prettige lichtinval. 

    De rustige, neutrale tinten geven de ruimte een elegante uitstraling, terwijl de houten grepen en verfijnde goudaccenten zorgen voor een luxe touch. Vanuit de keuken kunt u doorlopen naar de bijkeuken waar zich het toilet bevindt en de opstelplaats voor de wasmachine.

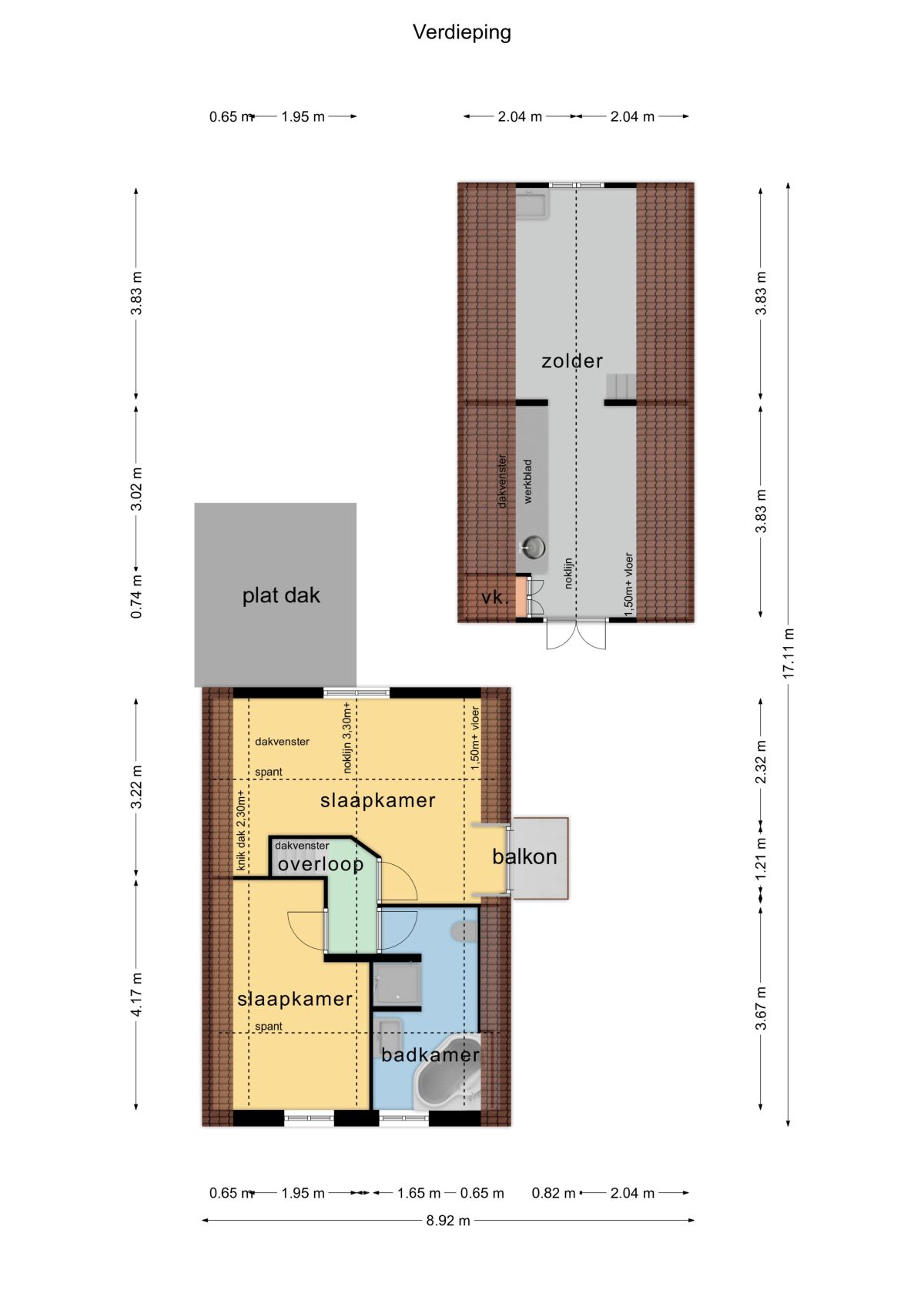
    Op de verdieping twee sfeervolle slaapkamers, waarvan één met frans balkon. De gehele bovenverdieping is voorzien van hardhouten massieve vloerdelen. Een van de kamers is nu ingericht met 2 bedden wat ook gemakkelijk past. 

    Verder een fijne badkamer voorzien van ligbad, douchecabine, wastafel en toilet. 

    Achter de woning een heerlijke tuin met meerdere zithoekjes, een vrijstaande schuur met ruime zolderverdieping en poort met uitgang naar het achtergelegen park/notaristuin. 

    Op het knusse terras bevindt zich een authentieke hout gestookte pizza oven waar u ultiem kunt genieten.

    De ruime vrijstaande schuur achter de woning is voorzien van een palletkachel die het gehele huis verwarmd, tevens voorzien van een verdieping, dus u heeft voldoende berg-hobbyruimte.

    Op het dak ligt een zonneboiler, zodat de zon voorziet in uw warmwatervoorziening. Dit betekent een lagere energierekening én een duurzamere manier van wonen. 

    Bent u op zoek naar een sfeervol en instapklaar huis op een toplocatie? Maak snel een afspraak en laat u verrassen!

    Woningruil is ook mogelijk (Oosterend)!

    Algemeen

    Type woning
    Vrijstaand woonhuis met garage
    Hoofdcategorie
    Permanente woning
    Slaapkamers
    2
    Badkamers
    1
    Onderhoud binnen
    Goed
    Onderhoud buiten
    Goed
    Aanvaarding
    In overleg
    Soort dak
    Mansardekap
    Comfort
    Normaal
    Bouwjaar
    1911
    Publicatie datum
    13 januari 2026

    Energie

    Verwarming
    Pellet kachel
    Type warmwater voorziening
    Zonneboiler

    Oppervlakten & Inhoud

    Perceeloppervlakte
    390 m²
    Gebruiksoppervlakte woning
    85 m²
    Inhoud woning
    375 m³

    Kadastrale gegevens

    Gemeente
    Texel
    Sectie
    N
    Nummer(s)
    1785
    Eigendomsgegevens
    Volle eigendom

    Buiten & Tuin

    Soort tuin
    Tuin rondom
    Parkeergelegenheid
    Openbaar parkeren, Op eigen terrein

    Bergruimte

    Aanvullende eigenschappen

    Vrijstaande schuur met verdieping

    Julianastraat 5

    Brochure_Julianastraat_5.pdf
    Julianastraat 5
    1791 AK Den BurgTexel