Skip to main content

Schoonoordsingel 42

  • 1791 EM Den Burg
325000
k.k.
245 m²

Perceeloppervlakte

90 m²

Woonoppervlakte

C

Energielabel

4

Slaapkamers

1949

Bouwjaar

325000

price
k.k.

245 m²

Perceeloppervlakte

90 m²

Woonoppervlakte

C

Energielabel

4

Slaapkamers

1949

Bouwjaar

    Omschrijving

    Let op: Huurders van Stichting Woontij die een huurwoning achterlaten hebben voorrang op niet-huurders, tot en met 22 mei 2026. Niet-huurders kunnen zich uiteraard wel gewoon aanmelden voor deze woning. 

    Aan een rustige straat, op loopafstand van het dorpscentrum van Den Burg, ligt deze hoekwoning met aangebouwde bijkeuken en berging, gelegen op 240 m² eigen grond. De woning biedt een praktische indeling met drie slaapkamers en zowel een voor- als achtertuin met zijpad. Deze woning wordt door ons verkocht namens Stichting Woontij. 

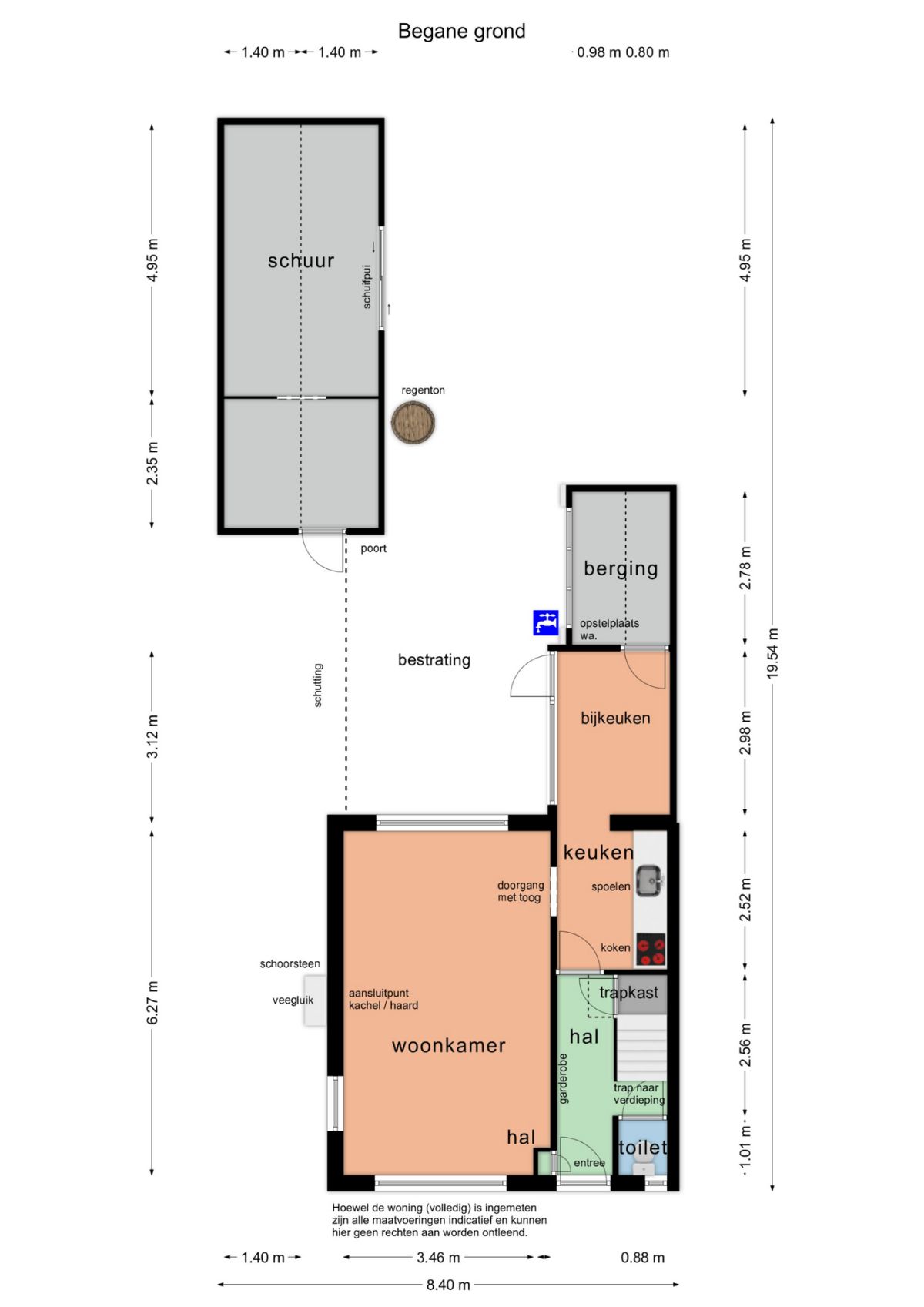
    Via de entree betreedt u de hal met meterkast, toiletruimte, trapopgang en praktische trapkast. Vanuit de hal loopt u door naar de woonkamer. De woonkamer is voorzien van houten vloerdelen en heeft een prettige lichtinval dankzij de aanwezige raampartijen. Aansluitend aan de woonkamer bevindt zich de halfopen keuken, welke eenvoudig is uitgevoerd en voorzien van enkele basisapparatuur.

    In de aanbouw bevindt zich de bijkeuken/berging met toegang tot de achtertuin.

    In de hal de trapopgang naar de verdieping. Via de overloop heeft u toegang tot vier slaapkamers en de badkamer. De slaapkamers variëren in grootte, waarbij twee kamers compacter zijn van opzet en één kamer ruimer (twee aaneengesloten ruimtes). De eenvoudige doucheruimte is volledig betegeld en voorzien van douche en wastafel.

    Middels een vlizotrap bereikt u de tweede verdieping. Deze verdieping doet dienst als praktische bergruimte en is voorzien van een dakraam. Tevens bevindt zich hier de opstelling van de HR CV-ketel uit 2025.

    De achtertuin biedt een prettige ruimte, maar vraagt om enige aandacht en onderhoud.

    Aan de zijkant bevindt zich een vrijstaande schuur, ideaal als klusruimte, opslag of fietsenstalling. Parkeren op eigen terrein is een pré.

    Let op: Geïnteresseerden die een woning van Woontij achterlaten hebben voorrang op de aankoop van deze woning.

    Plan een bezichtiging
    Ons team staat voor u klaar

    Algemeen

    Type woning
    2-onder-een-kap-woning
    Hoofdcategorie
    Permanente woning
    Slaapkamers
    4
    Badkamers
    1
    Onderhoud binnen
    Geen
    Onderhoud buiten
    Geen
    Aanvaarding
    Op korte termijn
    Soort dak
    Zadeldak, pannen gedekt
    Type inrichting
    Leeg
    Comfort
    Eenvoudig
    Bouwjaar
    1949
    Publicatie datum
    22 april 2026

    Energie

    Verwarming
    HR-CV ketel
    Type brandstof CV ketel
    Gas
    HR-CV ketel merk en bouwjaar
    Intergas, bouwjaar 2025
    Isolatie
    Gedeeltelijk geïsoleerd

    Oppervlakten & Inhoud

    Perceeloppervlakte
    245 m²
    Gebruiksoppervlakte woning
    90 m²
    Inhoud woning
    313 m³

    Kadastrale gegevens

    Gemeente
    Texel
    Sectie
    S
    Nummer(s)
    879
    Eigendomsgegevens
    Volle eigendom

    Buiten & Tuin

    Soort tuin
    Tuin rondom
    Gesitueerd op
    Zuidwesten
    Kwaliteit tuin
    Heeft aandacht nodig
    Parkeergelegenheid
    Op eigen terrein

    Indeling verdieping

    1e verdieping
    Overloop, Badkamer
    Overig 1e verdieping
    4 slaapkamers
    2e verdieping/zolder
    Bergruimte

    Bergruimte

    Soort bergruimte
    Vrijstaand, Hout
    Inhoud
    67 m³
    Gebruiksoppervlakte
    20 m²

    Schoonoordsingel 42

    Brochure_Schoonoordsingel_42_copy_1.pdf
    Schoonoordsingel 42
    1791 EM Den BurgTexel