Image

Kogerstraat 57 | 1791 EP Den Burg | telefoon: 0222 - 313 025 | info@texelvastgoed.nl

DE RUYTERSTRAAT 58 - OUDESCHILD
58 De Ruyterstraat , Oudeschild, Noord-Holland, 1792 AK, Nederland € 379.500 kosten koper
Permanente woningen
49
Kenmerken
Type woning:
Half vrijstaande woning
Slaapkamers:
2
Badkamers:
1
Onderhoud binnen:
Goed
Onderhoud buiten:
Goed
Aanvaarding
In overleg
Soort dak:
Zadeldak, pannen gedekt
Publicatie datum:
nov 10, 2025
Energie
Energielabel:
B (geldig tot 08-07-2032)
Isolatie:
Grotendeels geïsoleerd
Verwarming:
HR-CV ketel
Type isolatie:
Dakisolatie, Muurisolatie, Vloerisolatie
HR-CV ketel merk en bouwjaar:
Remeha bouwjaar 2009
Type brandstof CV ketel:
Gas
Kadastrale gegevens
Gemeente:
Texel
Sectie:
D
Nummer(s):
4869
Eigendomsgegevens:
volle eigendom
Perceeloppervlakte:
115 m²
Tuin
Type
Achtertuin
Gesitueerd op:
Noordwesten
Kwaliteit tuin:
Onderhoudsvriendelijk
Bouwjaar woning
Bouwjaar:
1760
Woonoppervlakte
Gebruiksoppervlakte woning:
63 m²
Inhoud woning:
197 m³
Permanente bewoning en/of recreatieve bewoning
Type
Permanente bewoning
Comfort
Type
Normaal
Inrichting
Type
Leeg
Parkeerfaciliteiten
Type
Openbaar parkeren
Overige bijzonderheden
Type
Airconditioning
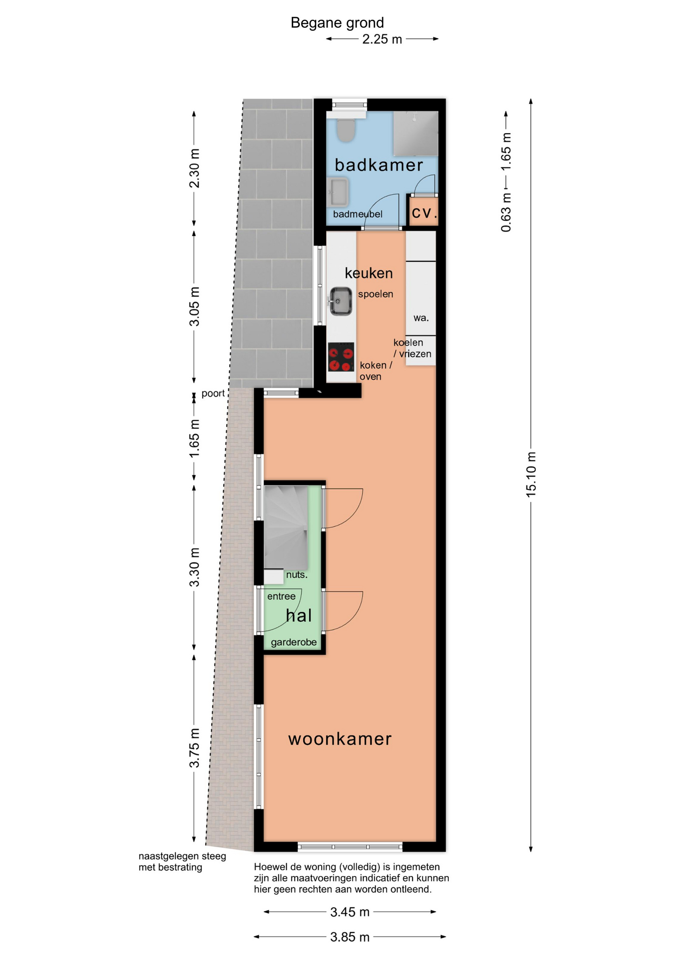
Indeling woning, begane grond
Type
Entree, Hal, Woonkamer, Keuken met inbouw apparatuur, Badkamer
Indeling woning, verdieping
Type
Overloop, Dakkapel, Bergruimte
Overige:
Op de overloop is een airco installatie. Op de verdieping treft u 2 slaapkamers.
Bijgewerkt op: nov 19, 2025

Wonen met uitzicht op de Waddendijk!

Aan de voet van de Waddendijk ligt deze instapklare woning, gelegen op een perceel van 115 m² eigen grond. De woning beschikt over een prettige achtertuin, twee slaapkamers en een net energielabel B.

Achter de karakteristieke witte gevel schuilt een sfeervol huis dat met zorg is onderhouden en waar je zó kunt gaan wonen. Vanuit de voorzijde van de woning heb je een groen uitzicht en kun je genieten van de prachtige zonsopkomsten in de ochtend. Een heerlijke plek om te wonen, in een gezellige woonstraat met openbaar parkeren direct nabij.

Indeling:
De entree bevindt zich aan de zijkant van de woning, met binnenkomst in de hal waar ook de vernieuwde meterkast is geplaatst. Vanuit de hal stap je de lichte woonkamer binnen, waar meteen de prettige sfeer opvalt.

De woonkamer is afgewerkt met een plavuizenvloer met vloerverwarming, gestucte muren en inbouwspots in het plafond. Er is voldoende ruimte voor een eethoek, waar je gezellig kunt tafelen met familie of vrienden.
De woonkamer is praktisch ingedeeld, netjes afgewerkt en voelt dankzij de neutrale kleuren en het natuurlijke licht bijzonder aangenaam aan.

De keuken is keurig onderhouden en voorzien van voldoende werk- én kastruimte. Hier vind je onder andere een vaatwasser, kookplaat, oven, koel-/vriescombinatie en de aansluiting voor de wasmachine. Vanuit de keuken is er een doorgang naar de badkamer, die is uitgerust met een douche, wastafelmeubel en toilet.

Via de woonkamer is de trapopgang naar de eerste verdieping bereikbaar.

Eerste verdieping:
Op de eerste verdieping bevinden zich twee slaapkamers, waarvan één iets ruimer van opzet. Beide kamers beschikken over een dakkapel, wat zorgt voor extra ruimte, meer daglicht en een aangename open sfeer. Op de overloop is een airco-installatie geplaatst en is er ruimte voor een kledingkast of bergruimte.

Buitenruimte:
Achter de woning ligt een onderhoudsvriendelijke, strak aangelegde tuin met ligging op het noordwesten. De tuin is grotendeels bestraat en voorzien van een border met beplanting.

Een bijzonder detail: in de tuin bevindt zich een originele waterput! Aan de achterzijde is bovendien een knusse veranda, waar je heerlijk beschut kunt zitten. Aangrenzend vind je een berging, ideaal voor fietsen en/of tuingereedschap. Via de zijpoort loop je gemakkelijk naar de voorkant van de woning.

Hier woon je rustig, met de haven letterlijk om de hoek, parkeerplaatsen voor de deur en alle voorzieningen van Oudeschild binnen handbereik. Een ideale, geheel instapklare woning!

We hebben een PDF-presentatie gemaakt met alle essentiële informatie over: DE RUYTERSTRAAT 58 - OUDESCHILD .
2D Begane grond
3D Begane grond
2D Verdieping
3D Verdieping
2D Bijgebouw
3D Bijgebouw
Image

Kogerstraat 57
1791 EP Den Burg
Telefoon: 0222 - 313 025
E-mail: info@texelvastgoed.nl

Ontwerp & Techniek: WEBJONGENS